產品描述
橫川·YOKOKAWA 系列直線電機模組,包括無鐵芯電機和有鐵芯電機類型的模組,載臺長度有135mm、190mm、270mm、378mm多種可選類型,分別對應多種推力和負載 遞增的多個范圍。標準的模組提供50mm遞增(1000以內)可選有效行程。
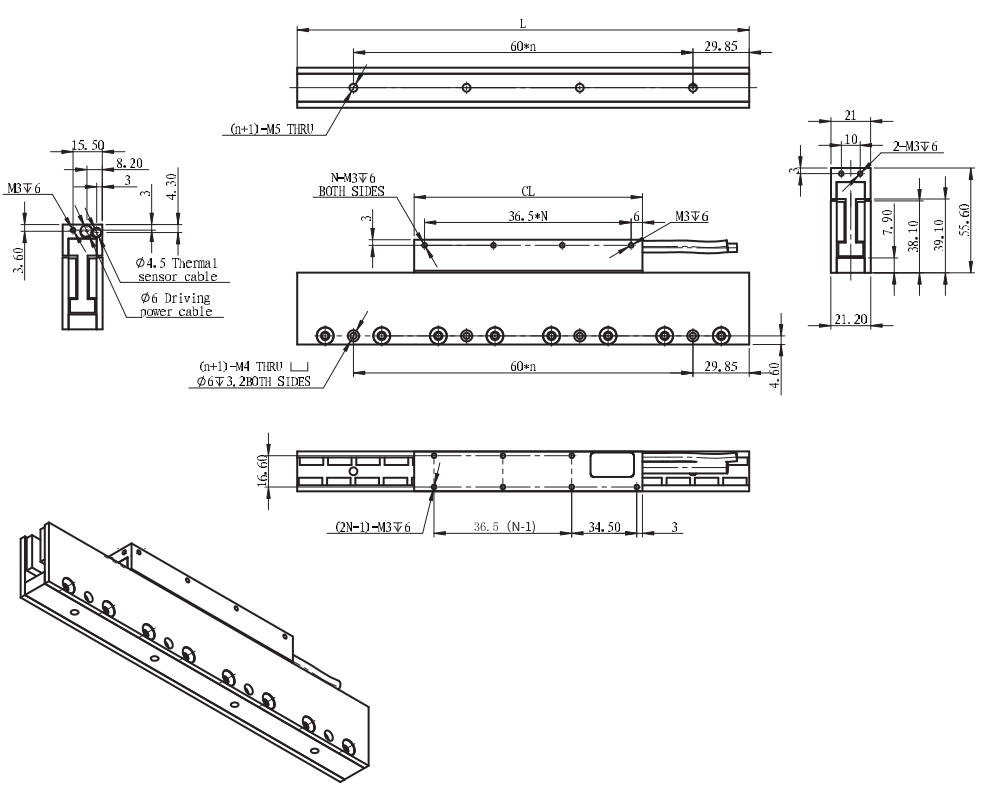
LMC系列有鐵芯電機

外形圖(單位:mm)

| 額定性能 | 符號 | 單位 | LM200-X2 | LM200-X3 | LM200-X4 | LM200-X5 |
|
| 峰值推力 | Fp | N |
92 |
137 |
183 |
229 |
|
| 持續推力(溫度Tmax下)請參考閱注釋① | Fc |
N |
18 |
27 |
37 |
45 |
|
| 電機常數(25℃下) | Km | N/√W |
4.5 |
5.5 |
6.54 |
7.1 |
|
| 連續功率 | Pc | W |
16 |
24 |
32 |
40 |
|
| 電氣規格 |
|
|
| 繞組形式 | N1 | N4 | N1 | N4 | N1 | N4 | N1 | N4 |
|
| 峰值電流 | Ip | Arms |
14 |
28 |
14 |
28 |
14 |
28 |
14 |
28 |
|
| 持續電流(溫度Tmax下) | Ic | Arms |
2.7 |
5.4 |
2.7 |
5.4 |
2.7 |
5.4 |
2.7 |
5.4 |
|
| 電阻(在25℃±10%下) | Rm | 歐姆 |
1.8 |
0.45 |
2.7 |
0.68 |
3.6 |
0.9 |
4.5 |
1.2 |
|
| 電感±20% | L | mH |
0.32 |
0.08 |
0.47 |
0.12 |
0.64 |
0.26 |
0.8 |
0.2 |
|
| 反電勢常數(在25oC±10%下) |
Ke |
Vpeak/m/s |
5.5 |
2.8 |
8.2 |
4.1 |
11 |
5.5 |
13.6 |
6.9 |
|
| 推力常數(在25oC±10%下) | Kf | N/Arms |
6.7 |
3.4 |
10 |
5 |
13.5 |
6.8 |
16.7 |
8.9 |
|
|
機械規格 |
| 線圈總成質量±15% | Mc | kg |
0.12 |
0.18 |
0.24 |
0.28 |
|
| 永磁體總成質量±15% | Mw | kg/60mm |
0.22 |
0.22 |
0.22 |
0.22 |
|
| 品質因數與附加數據 |
| 極距 | Tm | mm |
30 |
30 |
30 |
30 |
|
| 磁性吸引力 | Fa |
kN | 0 | 0 | 0 | 0 |
|
| 最高允許線圈溫度 | TmaX | ℃ | 120 | 120 | 120 | 120 |
|
| 對應定子型號 |
|
| T-LM200-XXX | T-LM200-XXX | T-LM200-XXX | T-LM200-XXX |
|